|
|
  |
  |
  |
|
|
|
|
|
安装与接线 |
|
1.控制仪的安装
(1)可水平安装、竖直安装。
(2)管道内流体的流向应与控制仪上标志的流向一致,竖直安装时应保证流体自下而上流动。
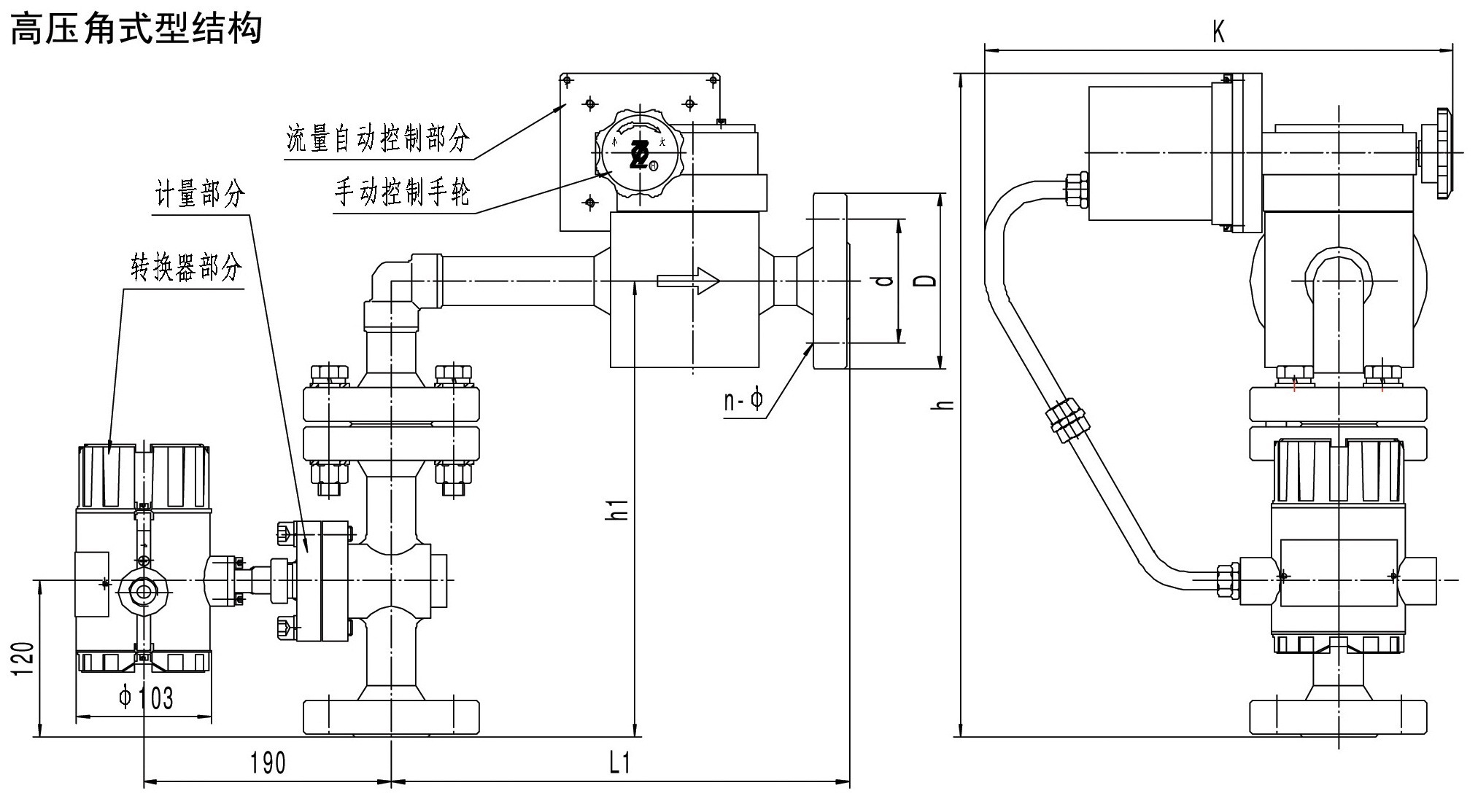
(3)控制仪的上下游应设置直管段,直管段内径与控制仪内径相同,长度大于5倍的公称通径。
(4)上下游直管段内径应与控制仪通径一致,安装时应保证各个管段同心。
(5)安装密封垫时,不应使密封垫突入管道内。
(6)所测流体中若含有固体杂质,应在控制仪上游安装过滤器。
(7)为了检修控制仪的需要,应在控制仪的上下游安装截止阀,同时设置旁通管路以便在检修时不中断流体的输送。
设置旁通管路应注意能保证在流量测量时不会产生泄漏而影响测量的准确。
(8)安装控制仪时应保证管道没有对控制仪有额外的应力,以避免该应力而产生的泄漏或损坏。
(9)安装或拆卸时一定要切断电源。
(10)所有设备均应先清理后安装,不可将焊渣等各种异物留在管道内。
(11)如需对新装管道进行扫线,应先用直管段代替控制仪和过滤器安装在管道上,待扫线完毕再换上。
|
|
2.控制仪的接线
注意:接线前对照控制仪接线端子标签和接线图确认使用的电源类型
(1) a—— 24V AC:控制仪“24V+”、 “24V-”两个端子分别接24V交流电源的相线和地线
b—— 220V AC:控制仪“L”、 “N”两个端子分别接220V交流电源的火线和中线
(2) 隔爆密封接头按相应章节所示安装隔爆密封接头、穿线。
|
|
|
 |
|
注意事项 |
|
初次上电使用前,应通过手轮使阀门的开启度在中间值附近(手动调节:顺时针方向开大,逆时针方向关小)。
设定瞬时流量值(控制点)时,须注意瞬时流量设定值不能大于管道中最大瞬时流量,不然的话,即使阀门打开到最大值,流量还是上不来。
|
隔爆型产品安装注意事项 |
|
本产品可用于GB3836.1-2000《爆炸性气体环境用电气设备 第1部分:通用要求》、GB3836.2-2000《爆炸性气体环境用防爆电气设备 第2部分:隔爆型“d”》所规定的爆炸等级不高于Ⅱ类C级,自然温度T1~T6组别的 I 区或 Ⅱ 区危险场所,为确保防爆设备的安全,应小心安装螺栓、电缆、管道,维修也要注意安全。 |
|
一、安装 |
|
隔爆产品使用的电缆引入装置应如图所示的隔爆密封接头,并按图正确穿线。
1、产品设有接地端子,用户在使用产品时,应可靠接地;
2、现场使用、维护时必须遵守“断电后开盖”的警告语;
3、引入电缆的护套外径为Φ8~Φ9(mm),建议使用三芯屏蔽线RVVP3×32×0.2
或RVVP3×48×0.2;
4、维修时必须在安全场所进行,当安装现场确认无可燃气体存在时,方可维修。
|
|
|
|
|
|
二、安装环境条件
1、周围环境气压为80kPa~110kPa,环境温度为―20℃~+60℃,空气相对湿度为90%;
2、环境中可燃性气体或易燃液体的蒸汽其爆炸等级不高于Ⅱ类C级;自然温度为T1~T6组别,产品安装在Ⅰ区或Ⅱ区危险气体场所;
3、温度级别与防爆产品和设备之间外露部分的最高表面温度及介质温度不得超过下表规定。
|
|
温度级别
|
T1
|
T2
|
T3
|
T4
|
T5
|
T6
|
|
允许介质温度
|
<450
|
<300
|
<200
|
<135
|
<100
|
<85
|
|
最高表面温度
|
<430
|
<280
|
<195
|
<130
|
<95
|
<80
|
|
|
三、使 用
1、使用中外壳如出现腐蚀现象,应及时更换;
2、内外接地端子必须可靠接地,在检修时,接线盒处必须断电后开盖;
3、电缆引入装置中的密封圈、盖处的O形圈若发现老化必须及时更换;
4、导线与接线片之间应用可靠牢固的方式连接,同时套上绝缘套管要装好折成直角,确保电气间隙大于4mm;
5、引线电缆应适合安装场所的腐蚀性和耐高温性;
6、安装接线盒时不得破坏其螺纹及隔爆接洽面;
7、现场要安装使用和维护产品必须同时遵守使用说明书及下列相关标准的有关规定:
GB3836.13-1997 爆炸性气体环境用电气设备 第13部分:爆炸性气体环境用电气设备的检修、
GB3836.15-2000 爆炸性气体环境用电气设备 第15部分:危险场所电气安装(煤矿除外)、
GB3836.16-2006 爆炸性气体环境用电气设备 第16部分:电气装置的检查和维护(煤矿除外)、
GB50257-1996 电气装置安装工程爆炸和火灾危险环境电气装置施工及验收规范。
|
控制仪的设置、调试、校准 |
|
一、概述 |
|
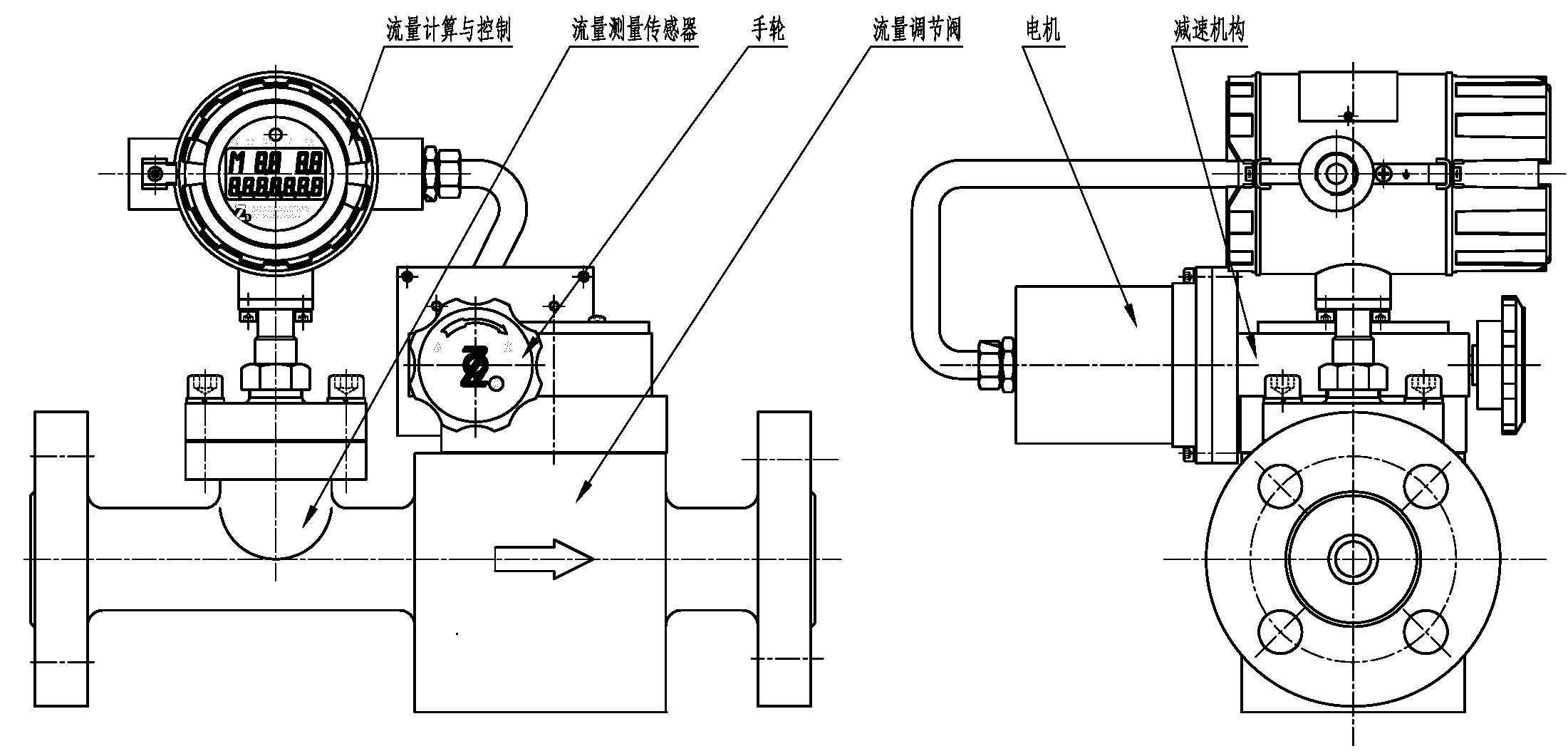
1. 控制面板 |
|
24V AC动力电源 |
220V AC动力电源 |
 |
 |
2. 提示符:M:手动控制状态,若流量设定值设置为0或马达长时间动作而不能将流量调整到设定值,则马达处于手动控制状态,此时左上角的提示符M会点亮。
P:点亮表示当前仪表处于编程(Programming)状态,在编程状态下,可以对控制器参数进行设置。 |
|
3. 显示:液晶屏上排显示提示符、瞬时流量和流量设定值,下排显示累积流量。 |
3. 显示模式:2种,
常规模式:显示器上排同时显示瞬时流量(左)和流量设定值(右),单位(m3/h),2位有效数字,下排显示累积流量,单位(m3),精确度小数点后3位。
精细模式:显示器上排仅显示瞬时流量(工作状态)或流量设定值(编程状态),单位(m3/h),精确度小数点后3位,下排显示累积流量,单位(m3),精确度小数点后4位。 |
|
二、设置 |
|
24V AC动力电源 |
220V AC动力电源 |
1.工作状态下时,提示符P不点亮。用磁笔长按SET键(确认键),装置进入控制流量
设定界面,此时P灯亮, 表示可以进行参数的修改。
为了避免误操作或干扰,在设置状态下10秒无按键则控制仪自动回到工作状态
并锁定。 |
1.工作状态下时,按遥控器的Fn键(n=1~12,n一般对应控制仪安装位置)后进入编程状态,
此时液晶显示屏的提示符P点亮。
为了避免误操作或干扰,在解锁状态下10秒无按键则控制仪自动回到工作状态并锁定。 |
2.在设定界面设置流量设定值:通过SHIFT键(移位键)改变数位,使要更改的数位
数字闪烁,通过INC键(加一键)更改数字,通过SET键(确认键)完成设置。
不论是在常规模式还是精细模式,均可设置流量设定值,设置精度不同。 |
2.在设定界面设置流量设定值:通过遥控器上的 键(移位键)改变数位,使要更改的
数位数字闪烁,通过▲键(加一键)、▼(减一键)更改数字,通过确认键完成设置。
不论是在常规模式还是精细模式,均可设置流量设定值,设置精度不同。 |
3.累积流量清零:长按INC键(加一键),进入累积流量清零界面,下排累积流量显
示数字为全“0”并闪烁,若确需清零,按下SET键(确认键)。 |
3.累积流量清零:按遥控器的清零键,进入累积流量清零界面,下排累积流量显示数字为全
“0”并闪烁,若确需清零,按下确认键。若不需清零,再次按下清零键,则下排显
示恢复为原来的累积流量。 |
|
|
4.显示模式切换:按下遥控器显示键,控制仪的显示模式可在常规模式和精细模式间切换,
按下确认键完成当前设置。 |
|
注: 2种动力电源的控制仪,采用不同的转换器,其设置、调试和校准有所不同,详细内容参阅相应的说明书:
LZDK-流量自动控制仪使用说明书(低压24V,AC供电)
LZDK-流量自动控制仪使用说明书(高压220V,AC供电)
|
使用与维护 |
|
(一)使 用
1、控制仪投入使用前应先检查其安装和接线,应保证正确无误。
2、通过手轮手动调节阀门,使其开启度大致在中间值。
3、接通电源。
4、打开控制仪上游阀门,缓慢打开控制仪下游阀门。打开下游阀门时应保证流量大小在控制仪的流量范围内。
|
|
(二)维 护
1、控制仪在使用中应避免强烈的震动和碰撞。
2、控制仪的转换器维修时应先切断电源后方能打开盖。
3、打开盖接线时,应避免灰尘进入控制仪转换器内。
4、远距离传送时,如果信号在传输线上产生较大的衰减,请改用较粗的导线。
|
运输和贮存 |
|
1、控制仪在运输和搬运过程中(到达设置地点前或返回修理时),为了防止受到损伤,应保持本公司发运时的包装状态。
2、控制仪应存放在温度为5~40℃,相对湿度不超过85%的通风且不含腐蚀性气体的室内。
3、在搬运过程中严禁直接提取控制仪上的流量转换器。
|
|
订货须知 |
|
控制仪转换器的输出导线由用户自备。 |